icono de whatsapp

Ingeniería Inversa

Realizamos proyectos mediante muestras fabricadas, generando planos, modelados 3D y documentos de información técnica a la disposición del cliente.

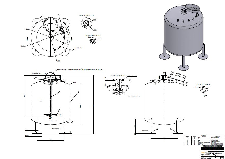
Aplicacion de ingeniería inversa a un tanque de almacenamiento de agua.

casa
anuncio

Contanier 40 ft

Planos 3D

Precio: 20000.00